Termotanque a gas Eskabe Acquapiú A6 de alta recuperación, con capacidad de hasta 1100 litros por hora y tanque de 76 litros. Sistema multitubular de 4 tubos, encendido piezoeléctrico, multigás y múltiples sistemas de seguridad. Ideal para alto consumo, duchas consecutivas e hidromasajes, con eficiencia energética B y diseño robusto en color gris plata.
Termotanque a Gas Alta Recuperación 1100 Lts/h
Modelo A6 – Línea Eskabe Acquapiú
El termotanque a gas Eskabe Acquapiú A6 de alta recuperación está diseñado para cubrir demandas intensivas de agua caliente, ofreciendo alto rendimiento, seguridad y eficiencia. Gracias a su sistema multitubular, brinda gran caudal en menor tiempo.
Rendimiento y capacidad
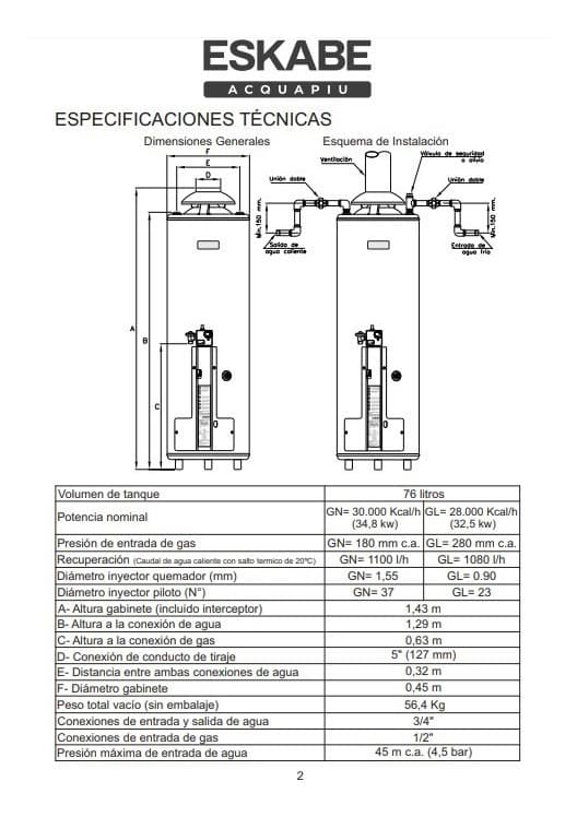
Recuperación con gas natural: 1100 litros por hora.
Recuperación con gas licuado: 1080 litros por hora.
Potencia: 30.000 kcal/h (GN) y 28.000 kcal/h (GL).
Capacidad del tanque: 76 litros.
Sistema multitubular de 4 tubos.
Alto caudal para múltiples usos
Hasta 12 duchas consecutivas de 10 minutos en 1 hora.
Equivalente a 4 termotanques de 120 litros en 1 hora.
Apto para abastecer hidromasajes hasta 212 litros.
Seguridad y control
Encendido piezoeléctrico.
Termostato con regulación de temperatura.
Control de salida de gases MonoxiProtector.
Válvula de seguridad y válvula de alivio.
Regulador de presión (solo gas natural).
Sistema multigás.
Diseño y especificaciones
Ubicación de entrada y salida de agua: superior.
Salida de gases vertical.
Diámetro del gabinete: 45 cm.
Diámetro del conducto de chimenea: 5”.
Altura total del gabinete: 143 cm.
Color: gris plata.
Eficiencia energética clase B.
Certificaciones
Matrícula GN: M 01-0406-05-016.
Matrícula GL: M 01-0406-05-016.
Una solución profesional para quienes necesitan gran caudal de agua caliente con máxima seguridad y eficiencia.